Investiční apartmány v největším horském resortu Krkonoš – místo, kde Vaše peníze pracují, zatímco Vy odpočíváte.

KLÍČOVÉ BENEFITY PROJEKTU:

 

📍Atraktivní lokalita

V největším soukromém horském resortu v Černém dole, přímo u sjezdovek a turistických tras.

Ukázat na mapě

 

💰 Investice s pasivním příjmem

Apartmány generují stabilní příjem díky pronájmu, zatímco se o vše stará profesionální správcovská společnost. 

 

🗓️ Osobní využití až 6 týdnů ročně

Majitelé mohou apartmán využívat jak pro sebe a svou rodinu či přátele nebo zaměstnance. 

 

✨ Plně vybavený resort

Wellness a fitness centrum, restaurace, krytá sportovní hala a aktivity pro děti i dospělé.

 

🛎️ Bezstarostná správa a komfort

Vše zajišťuje profesionální tým od úklidu, údržby až po pronájem – vy sem jezdíte pouze odpočívat.

 

⏳ Limitovaná nabídka 

Poslední 2 volné apartmány:

 

  • 2 NP | 3+kk | 62,4 m² |  s balkónem 13,7 m²
  • 1 NP | 1+kk | 28,1 m² |  s terasou 14 m²

Na rozdíl od mnoha jiných projektů, které se teprve rozjíždějí, tady vstupujete do již plně fungujícího resortu. Aurum má za sebou více než 10 let provozu, stabilní klientelu, sehraný tým a promyšlený systém správy, který zajišťuje vysokou obsazenost a kvalitní služby po celý rok. To je přesně ten typ projektu, kde člověk nemusí řešit starosti – jen si užívat výnosy a občas i vlastní pobyt na horách.

Royal Aparments Aurum tvoří 53 plně vybavených apartmánů, které jsou přímo propojené s fungujícím resortem. Najdete tu vše od wellness a fitness centra přes sportovní halu až po restaurace, kavárny a dětské herny pro všechny věkové kategorie. 

Všechny jednotky byly během prodeje kompletně vyprodány, nyní – s dokončením stavby a v souvislosti s blížící se kolaudací a nutností doplacení zbývající části kupní ceny – se vrací do nabídky poslední apartmány:

🏡 Apartmán číslo 2.21
Prostorný 3+kk, jediný svého typu v celém resortu (90 % jednotek je 1+kk).

📐 Dispozice: 3+kk | 62 m² + 13 m² balkón
🌞 Orientace: jih – balkón s krásným výhledem
💰 Cena: 11,9 mil. Kč

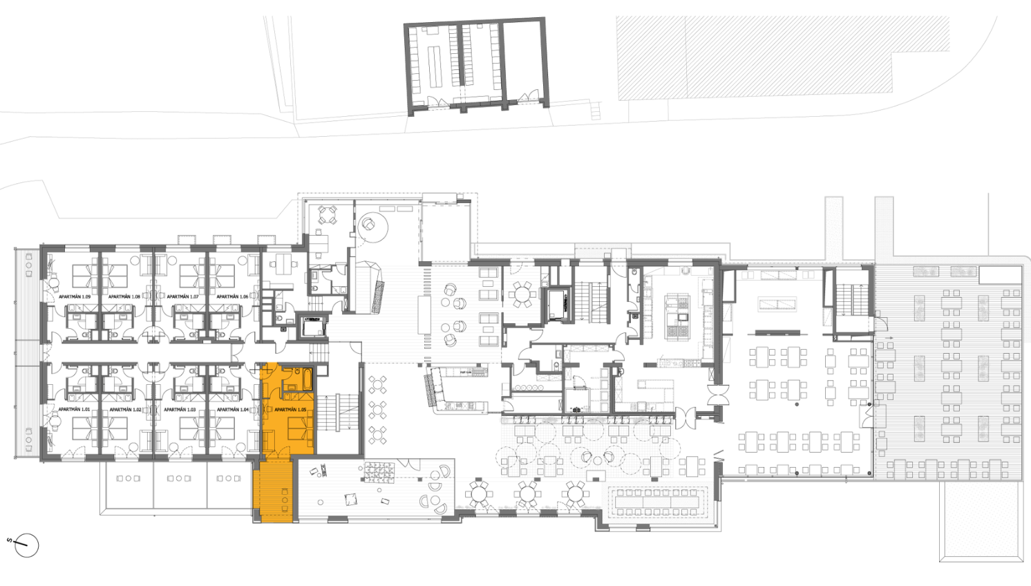
🏡 Apartmán číslo 1.05
Z rodinných důvodů se nám do prodeje uvolnil jeden z nejžádanějších apartmánů od začátku prodeje. Krásný 1+kk apartmán s vlastní terasou.

📐 Dispozice: 1+kk | 28,1 m² + 14 m² terasa
🌞 Orientace: jihozápad – terasa s krásným výhledem
💰 Cena: 5,8 mil. Kč

Royal Apartments Aurum představují ideální řešení pro ty, kdo chtějí pasivní příjem bez starostí, ale zároveň mít vlastní místo v horách, které jim bude vydělávat i když zrovna nejsou na místě.

Výhody nemovitosti

Jedinečná investiční příležitost

Vlastní nemovitost v srdci Krkonoš

Celoroční využití pro relax v přírodě

Apartman 1.05

Apartman 2.21

Černý důl – srdce Krkonoš

Vychutnat si naplno krásu Krkonoš a přitom se vyhnout přeplněným střediskům? Takové místo opravdu existuje. Černý Důl leží v samém srdci Krkonoš a nabízí ideální rovnováhu mezi klidem, přírodou a plnohodnotným horským zázemím.

V zimě tu oceníte moderní lyžařský areál s různě náročnými sjezdovkami, špičkově vybaveným dětským parkem, lyžařskou školou a půjčovnami vybavení. V létě nabízí okolí Černého Dolu desítky kilometrů turistických tras, cyklostezek a výletních cílů s panoramatickými výhledy na Krkonoše. Do 10 minut se dostanete do Janských Lázní, Pece pod Sněžkou nebo na oblíbenou Stezku korunami stromů.

Komfort bez starostí a luxusní zázemí

Majitelé apartmánů Royal Apartments Aurum mají k dispozici kompletní služby čtyřhvězdičkového horského resortu – zdarma mohou využívat jednu z největších wellness zón v Krkonoších, profesionálně vybavené fitness, vnitřní krytý bazén i vnitřní a venkovní dětská hřiště.

O provoz apartmánu se nemusíte starat – správa rezervací, pronájmů a veškerý servis je zajištěn zkušenou profesionální organizací, takže si můžete užívat komfort a odpočinek bez starostí, ať už jste v resortu, nebo svůj apartmán momentálně nepoužíváte.

Vzorový příklad investice

Apartmán v hodnotě 5 000 000 Kč dokáže při průměrné obsazenosti 50 % vygenerovat zhruba 638 000 Kč ročně.
Po odečtení správcovského poplatku (30 %) vám zůstává přibližně 380 000 Kč čistého zisku, tedy více než 30 000 Kč měsíčně pasivního příjmu – a to i při velmi konzervativním odhadu výnosnosti.

Jednotka 1 + kk, 30 m²

cca 5 000 000 Kč

Vlastní kapitál 30 %

2 000 000 Kč

Hypotéka 70 %

3 000 000 Kč

Splátka 6 %

17 000 Kč

Průměrná roční obsazenost 50 %

638 000 Kč

Průměrná cena pronájmu

3 500 Kč

Výnos finanční po odečtení servisní org. 30 %

447 000 Kč

Zálohy na fond oprav a energie

60 000 Kč

Výnos po odečtení poplatků a záloh

387 000 Kč

Proč právě apartmány v Resortu Aurum?

Pro srovnání – byt v novostavbě v Plzni za stejnou cenu přináší zhruba 20 000 Kč měsíčně. Investice do apartmánu v resortu Aurum však nabízí výrazně víc – kromě stabilního výnosu získáváte vlastní nemovitost v prestižní horské lokalitě, která je součástí kompletně vybaveného resortu se špičkovým zázemím.

  Pro koho je projekt ideální?

  • Pro lidi, kteří hledají bez starostí stabilní pasivní příjem bez starostí
  • Pro vlastníky nemovitostí, kteří chtějí další investici v horách
  • Pro ty, kdo chtějí luxusní chatu na horách, aniž by řešili údržbu nebo pronájem
  • Pro rodiny a zaměstnavatele, kteří chtějí komfortní rekreaci pro sebe i své blízké

Jsem tu pro Vás!

Zaujala Vás tato nabídka? Kontaktujte mě a rád Vám předám více informací nebo poskytnu nezávaznou konzulaci. 

Po odeslání formuláře Vám do 24 hodin dorazí informační e-mail o projektu. V opačném případě prosím zkontrolujte složku hromadná pošta či spam.

Nezaujala vás tato nabídka?

Dejte nám vědět, jaká nemovitost by odpovídala vašim představám. Napište nám, co přesně hledáte. V naší nabídce máme stovky nemovitostí a rádi vám na základě vašich preferencí připravíme výběr přesně na míru.

Spočítejte si splátky

Poraďte se s naší splátkovou kalkulačkou, jaká bude výše vaší měsíční splátky.

Podrobné nastavení cookies
Martin Nesnídal

Na této webové stránce používáme soubory cookies. Podrobné informace o používání souborů cookies jsou uvedeny v Zásadách ochrany osobních údajů.

Technické cookies

Tyto soubory cookies jsou nezbytné pro správné fungování našich webových stránek, proto je není možné vypnout. Váš prohlížeč můžete nastavit tak, aby tyto soubory cookies blokoval. Upozorňujeme vás, že v takovém případě některé části webových stránek nebudou fungovat.

Analytické cookies

Tyto soubory cookies nám umožňují analyzovat využívání našich webových stránek, měřit návštěvnost a získávat další informace o provozu webových stránek. Cílem je zlepšovat výkonnost našich webových stránek.

Reklamní cookies

Tyto soubory cookies umožňují zobrazovat reklamu na základě Vašich preferencí. Využíváme je zejména proto, abychom vytvořili profil vašich zájmů a mohli se vám zobrazovat relevantní reklamy. Pokud nevyjádříte souhlas, nebudete příjemcem obsahů a reklam přizpůsobených Vašim zájmům.